Har du spørgsmål?
Kontakt en af vores faguddannede kundeservicemedarbejdere:
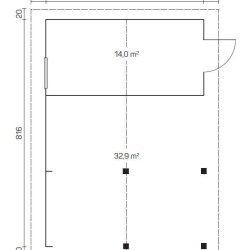
En dobbelt carport med skur giver dig ikke kun seriøs beskyttelse til bilerne, men også ekstra plads til opbevaring, lige ved hånden hjemme på matriklen. Denne løsning i træ er et populært valg, hvis du ønsker en robust og rummelig carport, hvor kvaliteten kan mærkes i hverdagen – ikke mindst takket være den solide godstykkelse på hele 70 mm. Modellen er fremstillet i højkvalitetsgran, og det betyder, at du ikke skal gå på kompromis med materialerne. Du får 32,9 m² overdækket areal til dine biler og et stort, integreret redskabsrum på hele 14 m². Det er både praktisk, hvis du drømmer om ekstra plads til haveredskaber, plæneklipper og det løse, men også hvis du har brug for et skur, der opfylder behov for lidt mere orden i udendørslivet.
Anvendelse
Denne dobbelt carport med skur passer perfekt til dig, der har brug for at beskytte to biler mod vind, regn og sne – eller blot vil skåne bilen for det danske vejr. Udover selve bilerne er det et ekstra plus, at der er god plads til at opbevare cykler, værktøj eller måske havemøbler, du ikke bruger året rundt. Redskabsrummet er rummeligt, og med skurets isolerede vægge får du også mulighed for at opbevare ting, der ikke må tage skade af store udsving i temperaturen. Døren på 84x190 cm og vinduet på 91,5x42 cm giver nem adgang og fint naturligt lys.
Produkt fordele
Du får en gennemført og solid dobbelt carport med skur, der er gennemtænkt på flere områder:
- Ekstremt solid træramme med 70 mm godstykkelse – det mærkes på stabiliteten
- Bygget i høj kvalitet grantræ for varig holdbarhed
- Stor kapacitet: 32,9 m² carport og 14 m² redskabsrum
- Nem adgang til skur via dør med gode mål
- Vindue giver ekstra lys i skuret
- Taget er klar til montering af shingles, hvilket giver effektiv beskyttelse mod regn
- Mulighed for isoleret skur for endnu bedre opbevaring
- Kan bestilles inklusive montering for nem opstart
Specifikationer
- Mål: 836x575x302 cm (BxDxH) inkl. udhæng
- Kiphøjde: 302 cm
- Væghøjde: 228 cm
- Areal carport: 32,9 m²
- Areal redskabsrum: 14 m²
- Tagareal: 55,9 m²
- Taghældning: 15 grader
- Dør til redskabsrum: 84x190 cm (BxH)
- Vinduet redskabsrum: 91,5x42 cm (BxH)
- Ubehandlet træ
- Tag: trætag til shingles
- 70 mm godstykkelse
Er du på jagt efter den rette dobbelt carport med skur til en god pris – og overvejer du muligheden for montering eller ekstra isolering – så tag endelig kontakt. Her finder du en praktisk og solid hverdagspartner, der holder styr på både biler og redskaber.
**OBS**
Du skal bruge 22 pakker shingles tagpap – dem finder du nemt under relaterede produkter.
