Selvklæbende tagfolie i grå/alu på 5m2
Leveres på ugetur, forvent 3-9 hverdage
795,00 DKK
(Inkl. moms)
Har du spørgsmål?
Kontakt en af vores faguddannede kundeservicemedarbejdere:
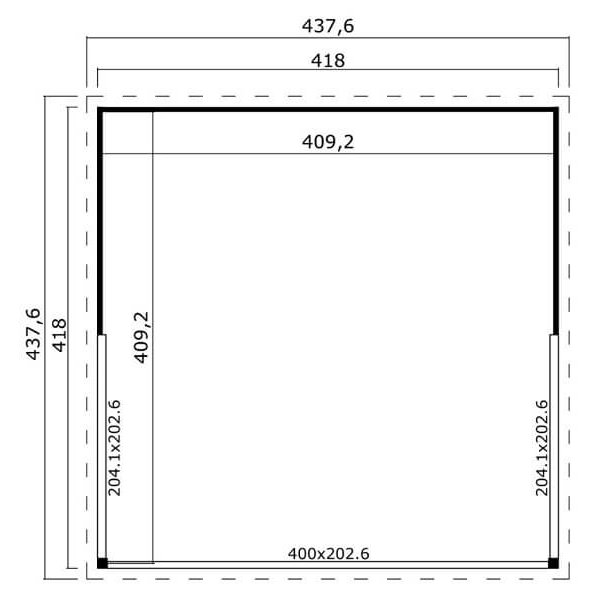
Drømmer du om mere plads eller et fleksibelt anneks til haven eller sommerhuset? Med hjemsted eksklusiv anneks havehus model 5 får du 16,74 m2 ekstra rum, der kan bruges året rundt – uanset om du har brug for et hjemmekontor, et ekstra soveværelse, et hobbyrum eller endda som et lille hyggeligt sauna anneks. De solide 44 mm tykke vægge og dobbeltglas vinduer sikrer, at du får et anneks med masser af muligheder, der kan tilpasses både sommerens og vinterens behov. Det ubehandlede træ giver dig frihed til selv at vælge finish, så huset passer naturligt ind i haven eller ved dit sommerhus, og den høje kvalitet sikrer, at det kan holde til det danske vejr i mange år.
Dette anneks er langt mere end bare et havehus – det er en praktisk løsning til dig, der mangler fleksibel plads. Vil du have et anneks til sommerhus eller kolonihave, er model 5 et oplagt valg. Det fungerer som et ekstra rum til familie og venner, der overnatter, eller som opbevaringsplads til dine havemøbler om vinteren. Med hjemsted eksklusiv anneks havehus model 5 får du en størrelse, der ligger ideelt mellem det klassiske isoleret anneks 15 m2 og de store anneks 30m2, så det er let at integrere i de fleste haver eller ved et mindre sommerhus. Takket være de store skydedøre med aluminiumslister får du samtidig mulighed for både at lukke masser af lys ind og lade rummet flyde sammen med haven på de gode dage. Overvejer du sauna anneks, giver de tykke vægge solide rammer, og vinduerne holder på varmen, hvis du ønsker at tilpasse huset til wellness eller afslapning.
Når du vælger hjemsted eksklusiv anneks havehus model 5, får du et rummeligt, sikkert og alsidigt havehus med masser af anvendelsesmuligheder.
Fordele:
Gør plads til din hverdag med ekstra rum – bestil hjemsted eksklusiv anneks havehus model 5 i dag og glæd dig til mange gode stunder i dit nye havehus, uanset om du bor fast eller bruger det som anneks til sommerhuset!
OBS
Du skal bruge 5 ruller tagfolie – dem bestiller du nemt under relaterede produkter.
Relaterede produkter
Leveres på ugetur, forvent 3-9 hverdage
795,00 DKK
(Inkl. moms)Alle priser vises inkl. moms
